Buzwan
Morell
Architekten
Projekte
Leistungen
Büro
Kontakt
Datenschutz
Impressum
Menu
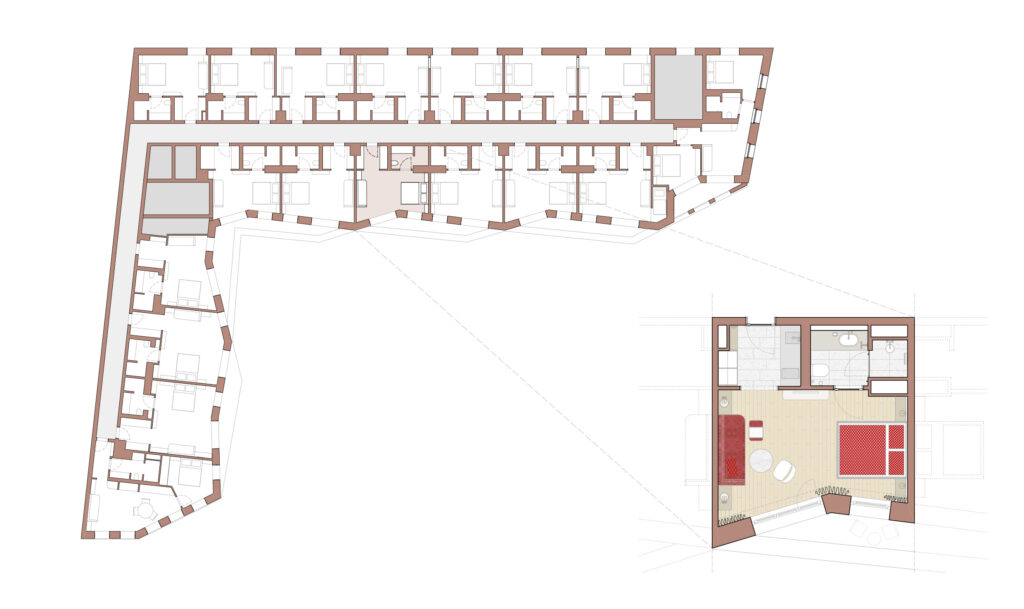
Zeppelinstraße
Planung des Innenausbaus mit Raumstruktur, Lobby mit Check-In Materialkonzept, Planung sämtlicher Möbel wie Pantry und Bäder
Ort
Potsdam
Größe
4058 qm BGF
Zeit
2021
LP
3,5-7
Grundriss Regelschoss
Grundriss Lobby
Ansicht Bett + Chaiselounge
Ansicht Dusche + Bett
Ansicht Eingangsbereich + Waschtisch
Ansicht Chaiselounge + Gaderobe
zurück zu Interior